令和8年5月1日 09時47分 更新
次回更新予定日:

家賃80000〜90000円 右京区の賃貸一戸建て・貸家・借家物件情報

有限会社 ライトハウス
右京区の賃貸物件はお任せ下さい
お問い合わせはライトハウスまでお電話下さい
075-864-0012

本日入荷・・・本日入荷 入荷後1週間以内・・・入荷後1週間以内 2週間以内に賃料変更した物件・・・2週間以内に賃料変更した物件



物件番号
外観・室内写真
間取
物件名
賃料
共益費
住所 最寄駅
徒歩
詳細 画像
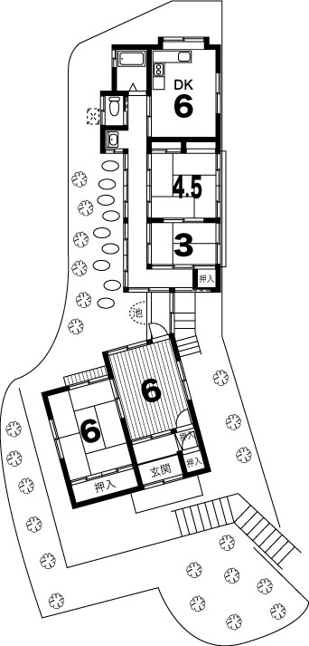
472
写真あり
 
梅ケ畑広芝町貸家
¥80,000
-
京都市右京区梅ケ畑広芝町 宇多野駅
45分
間取あり 写真あり
高雄小学校区の自然が豊富な平屋賃貸物件!前に小川が流れていて、庭園もあります。土地が約35坪ほどあり広くご利用できます。風情あふれる福王子の交差点から3.2キロ車で約5分です、少し遠い分自然が多く家賃が安くなっていますので穴場をお探しの方必見です。
アトリエ等での使用も可能です。土地は広いです!約35坪ほどあります。室内写真も掲載していますので是非見てください。なかなか希少な物件です。

3198
写真あり
4K
西京極堤外町貸家
¥80,000
 
京都市右京区西京極堤外町 西京極駅
3分
間取あり 写真あり
★西京極小学校区内の2階建て貸家。広めの4Kです。2階は振り分け間で1人1人でお部屋を持つことができます。裏庭も広く倉庫もあるので普段使わない荷物も楽に収納できますし、裏庭でガーデニングなどもいかがでしょう?
11382
写真あり
3K
太秦青木ヶ原町貸家
¥80,000
-
京都市右京区太秦青木ケ原町 太秦駅
3分
間取あり 写真あり
★ JR太秦駅の踏み切りを渡り、畑を横目に若干のどかな雰囲気を楽しみつつ北へ200mほど歩くと貸家があります。
室内は洋室6帖・和室6帖が2つ。キッチンは4帖見かけによらず広いです。マンションではお子さんが遊ぶと下の階が気になりますが、貸家は2Fでお子さんが遊んでも気になりません・・・
連棟で挟まれていますが、裏はガレージになっており日当り良好。南向きのベランダで、天気の良い日は洗濯物がすぐ乾きます。
スーパーマツモトまで歩約10分。交通・買物が便利なのが特徴です。常磐野小学校区お探しの方!見逃していませんか?
JR太秦駅歩約3分 京福常盤駅歩5分 常磐野小学校区
11671
写真あり
1K
中京区六角大宮町テラスハウス
¥80,000
 
京都市中京区六角大宮町 大宮駅
5分
間取あり 写真あり
2026年2月全面改装済の平屋。阪急大宮駅・京福四条大宮駅まで徒歩5分、地下鉄二条城前駅徒歩10分、3路線アクセス三条商店街もすぐで便利です。
11672
写真あり
5DK
花園木辻南町貸家
¥80,000
 
京都市右京区花園木辻南町 花園駅
8分
間取あり 写真あり
花園小学校・双ヶ岡中学校区内の2階縦貸家です。2022年に一部のクロスとフローリング貼替え、キッチン新調しています。丸太町通りから1本道入った立地で生活面便利な場所になります。広めのバルコニーがあるので洗濯ものは十分の広さで干せますし、BBQなどもできる余裕があります。
11673
写真あり
3LDK
太秦西蜂岡町貸家
¥80,000
 
京都市右京区太秦西蜂岡町 太秦駅
7分
間取あり 写真あり
★太秦学区内の3LDK貸家です。1階にガレージ+倉庫もあります。室内は2階はLDK使用で3階に3部屋+屋根裏収納付きです。ペットも2匹までは条件変わらずに一緒に生活することができます。南向きベランダで日当たりも良いです。JR太秦駅も10以内で行ける立地
11674
写真あり
2LDK
太秦安井二条裏町貸家
¥90,000
 
京都市右京区太秦安井二条裏町 太秦天神川駅
9分
間取あり 写真あり
★リフォーム済2階建貸家。浴室・トイレ・キッチン・床・クロス・建具等を新調しているのでほぼすべて綺麗な状態でご使用して頂けます。広めのバルコニーもあり快適な生活ができます。軽自動車も停めるスペースもあります。地下鉄の太秦天神川駅まで徒歩9分の立地でスーパーもあり生活面も便利な場所です。