太秦○○町 新築一戸建 ライトハウス売主物件
おすすめポイント

JR花園駅 徒歩14分(約1100m)
京福 太秦広隆寺駅 徒歩7分(約500m)
地下鉄 太秦天神川駅 徒歩13分(約1000m)
スーパーマツモト(約350m)
ライフ(約900m)
太秦小学校(約650m)
太秦中学校(約900m)

| 価格 | ****万円 ※物件価格に建築確認費用と 外構費を含みます |
|---|---|
| 間取り | 3LDK |
| 土地面積 | 82.51m2(24.95坪) |
| 建物面積 | 103.41m2(31.28坪) |
| 建蔽率 | 70% 準耐火構造により10%緩和 |
| 容積率 | 160% |
| 物件詳細 |
新築【#22558】 成約済み |
| 完成 | |
| 足場撤去しました 2022-09-04 | |
| 工事進捗状況 2022-08-12 | |
| 工事進捗状況 2022-08-04 | |
| 完成予想図・間取 | |
| 設備プラン | |
| 建築プラン1 | |
| 建築プラン2 | |
| 建築プラン3 | |
| 建築プラン4 | |
| 建築プラン5 | |
完成
2022年9月4日 足場撤去しました
足場撤去しました
2022年8月12日 工事進捗状況
工事進捗状況
-
バスルーム 設備入れました。
-
バスルーム折れ戸の手前が洗面脱衣室になります。
-
リビング 天井のボード・フローリングを張りました。画面中央が壁用のボードです。
-
2階部分 画像中央の黄色の袋は、壁・天井に仕込む断熱材です。
-
2階廊下
-
2階部分 壁天井に張るボードを上げました。このボードを張ると部屋らしくなります。
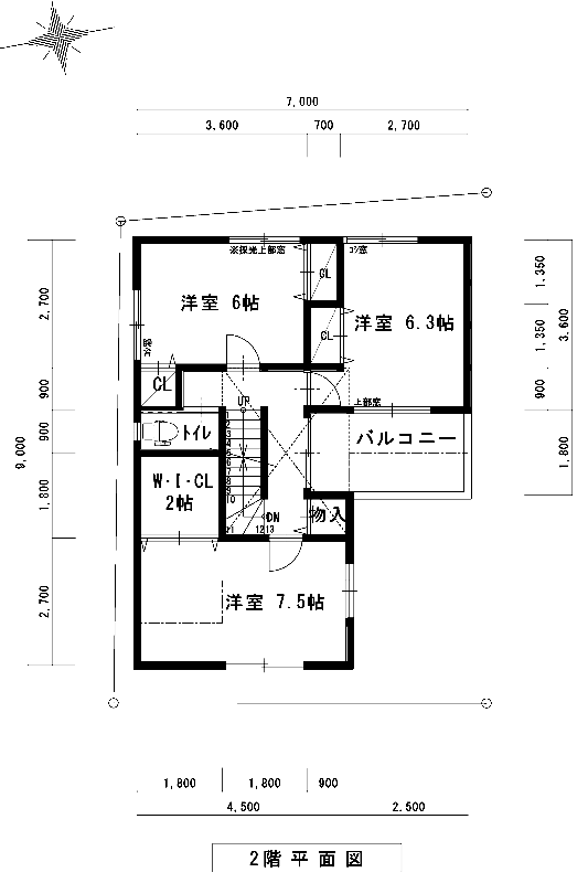
完成予想図・間取
建築面積100㎡超の4LDK
建物間口を可能な限り広げ、約19帖の広いリビング、シューズインクローゼット等収納を確保
2階に、振り分けの洋室4部屋に加え中央に大きなファミリークローゼットを作ります。
4LDKですので、主寝室・お子様の部屋・リモートワーク用等に使えるの書斎としてご利用いただけます。
設備プラン
建築プラン1
さまざまな建築プランを描いてみました。リビングの配置や大きさと採光・家事動線・収納を考えて1階部分をプラン、2階に配置可能な居室の間取などを考えながらプラン作成をしていきます。
【建築プラン2】 【建築プラン3】 【建築プラン4】 【建築プラン5】も参考に、お客様のご希望をお聞かせください。
この【建築プラン1】では、リビングが道路境界面に向いていますので明るい部屋になります。
キッチンに大きなパントリースペースやファミリークローゼットなど収納を確保し、キッチンから洗面・バスルームへ家事動線の良い間取りです。
建築プラン2
さまざまな建築プランを描いてみました。リビングの配置や大きさと採光・家事動線・収納を考えて1階部分をプラン、2階に配置可能な居室の間取などを考えながらプラン作成をしていきます。
【建築プラン1】 【建築プラン3】 【建築プラン4】 【建築プラン5】も参考に、お客様のご希望をお聞かせください。
この【建築プラン2】では、2階にワイドスパンバルコニーを作り、約3帖のウォークスルークローゼットを作ってみました。
建築プラン3
さまざまな建築プランを描いてみました。リビングの配置や大きさと採光・家事動線・収納を考えて1階部分をプラン、2階に配置可能な居室の間取などを考えながらプラン作成をしていきます。
【建築プラン1】 【建築プラン2】 【建築プラン4】 【建築プラン5】も参考に、お客様のご希望をお聞かせください。
この【建築プラン3】では、リビングの配置を移動しています。建築プラン1・2の縦長のリビングとは対象的に広さを感じられる空間となり、家具配置の自由度が増します。
建築プラン4
さまざまな建築プランを描いてみました。リビングの配置や大きさと採光・家事動線・収納を考えて1階部分をプラン、2階に配置可能な居室の間取などを考えながらプラン作成をしていきます。
【建築プラン1】 【建築プラン2】 【建築プラン3】 【建築プラン5】も参考に、
お客様のご希望をお聞かせください。
この【建築プラン4】では、洗面脱衣室とバスルームの配置を変更しています。キッチンから洗面脱衣へのアクセスの良い2WAYキッチンで家事動線が改善できます。
建築プラン5
さまざまな建築プランを描いてみました。リビングの配置や大きさと採光・家事動線・収納を考えて1階部分をプラン、2階に配置可能な居室の間取などを考えながらプラン作成をしていきます。
この【建築プラン5】では、洗面脱衣室とバスルームの配置をさらに変更しています。
【建築プラン1】 【建築プラン2】 【建築プラン3】 【建築プラン4】も参考に、お客様のご希望をお聞かせください。


