会員登録(無料)いただくと、一般非公開の物件情報を閲覧などさまざまな特典があります。

会員登録されたお客様限定、新築一戸建仲介手数料無料
物件番号 写真画像 |
住所1 |
価格 価格履歴 |
駅名・バス停 徒歩 |
土地面積 建物面積 |
間取 種目 |
小学校区 中学校区 |
和暦築年月 引渡時期 |
詳細 |
画像 |
Bk24777
 |
京都市右京区太秦安井二条裏町 |
580万円 |
地下鉄 太秦天神川駅 10分 |
39.5m2 30.37m2 |
3K 中古連棟 |
安井小 四条中 |
S40/03 相談 |
|
|
天神川近くの2戸1の連棟物件です、収益物件としてもいかがでしょうか?お買物はマツモト西小路店徒歩7分、ライフ太秦店徒歩6分。学校は安井小学校徒歩6分。 |
Bk24471
 |
京都市右京区太秦森ケ東町 |
680万円 |
地下鉄 太秦天神川駅 9分 |
42.71m2 46.19m2 |
3DK 中古連棟 |
太秦小 太秦中 |
S41/05 即時 |
|
|
徒歩10分圏内でJR・地下鉄・京福の3つの交通機関が利用できます。前道が非道路の為再建築不可物件です、交通便利所と買い物便利な所で収益物件としてもいかがでしょうか。お買物はライフ太秦店徒歩6分、マツモト新丸太町店徒歩9分。学校は太秦小学校徒歩11分。 |
Bk24398
 |
京都市右京区花園寺ノ内町 |
698万円 |
地下鉄 太秦天神川駅 13分 |
29.71m2 32.03m2 |
4DK 中古連棟 |
花園小 双ヶ丘中 |
S41/02 即時 |
|
|
JR花園駅まで徒歩3分の交通便利な物件、南向きで日当り良好バルコニーの洗濯物も良く乾きそうです。お買物はライフ太秦店徒歩5分、マツモト新丸太町店徒歩11分。学校は花園小学校徒歩8分。 |
Bk24811
 |
京都市右京区太秦安井池田町 |
750万円 |
地下鉄 太秦天神川駅 8分 |
--- |
--- |
--- |
--- |
|
|
| この物件は会員様のみに公開しており、一般非公開です。 |
Bk24942 |
京都市右京区太秦和泉式部町 |
1,050万円 |
地下鉄 太秦天神川駅 14分 |
46.93m2 52.24m2 |
3DK 中古戸建 |
太秦小 太秦中 |
S47/05 相談 |

|
|
Bk24236
 |
京都市右京区山ノ内苗町 |
1,280万円 |
地下鉄 太秦天神川駅 13分 |
36.5m2 82.91m2 |
3DK 中古戸建 |
山ノ内小 四条中 |
S63/10 相談 |
|
|
近隣には京都ファミリーやコーナン・くら寿司などがある毎日楽しく生活できる立地、間取りは1階に倉庫そして天井収納庫もある片付けができるお家です。お買物は京都ファミリー徒歩4分、ライフ梅津店徒歩13分。学校は山ノ内小学校徒歩5分。 |
Bk24690
 |
京都市右京区花園扇野町 |
1,280万円 |
地下鉄 太秦天神川駅 13分 |
56.27m2 54.54m2 |
4K 中古戸建 |
花園小 双ヶ丘中 |
相談 |
|
|
土間の玄関、土間にある台所、続き間の部屋、京町家風の物件です。居住用はもちろんセカンドハウスとして、また事務所、アトリエ、収益用などとしてもお考え下さい。お買物はライフ太秦店徒歩4分、マツモト新丸太町店徒歩9分。学校は花園小学校徒歩10分。 |
Bk24579
 |
京都市右京区太秦辻ケ本町 |
1,780万円 |
地下鉄 太秦天神川駅 9分 |
--- |
--- |
--- |
--- |
|
|
| この物件は会員様のみに公開しており、一般非公開です。 |
Bk24331
 |
京都市右京区太秦椙ケ本町 |
1,880万円 |
地下鉄 太秦天神川駅 10分 |
--- |
--- |
--- |
--- |
|
|
| この物件は会員様のみに公開しており、一般非公開です。 |
Bk23716
 |
京都市右京区太秦野元町 |
2,099万円 |
地下鉄 太秦天神川駅 7分 |
40.02m2 87.48m2 |
3LDK 中古戸建 |
太秦小 太秦中 |
H12/06 即時 |
|
|
駅近、地下鉄太秦天神川駅と京福嵐電天神川駅が徒歩7分圏内。前道ゆったり約6m、車通りは少なく暮らしやすい立地です。駐車は車種限定で可能。建蔽率・容積率超過物件。お買物はサンディ太秦天神川店徒歩2分、フレスコ太秦店徒歩10分。学校は太秦小学校徒歩13分。 |
Bk24861
 |
京都市右京区太秦蜂岡町 |
2,180万円 |
地下鉄 太秦天神川駅 13分 |
89.84m2 102.7m2 |
3SK 中古戸建 |
太秦小 太秦中 |
S54/01 即時 |
|
|
広隆寺迄約100m東映太秦映画村迄約300mの立地の店舗付き住宅、様々な用途でご検討ください。物件と広隆寺の間の道は非道路の道です。お買物は大映通り商店街徒歩2分、マツモト新丸太町店徒歩9分。学校は太秦小学校徒歩3分。 |
Bk24391
 |
京都市右京区太秦和泉式部町 |
2,320万円 |
地下鉄 太秦天神川駅 11分 |
--- |
--- |
--- |
--- |
|
|
| この物件は会員様のみに公開しており、一般非公開です。 |
Bk24753
 |
京都市右京区太秦森ケ前町 |
2,580万円 |
地下鉄 太秦天神川駅 6分 |
--- |
--- |
--- |
--- |
|
|
| この物件は会員様のみに公開しており、一般非公開です。 |
Bk24764
 |
京都市右京区太秦木ノ下町 |
2,580万円 |
地下鉄 太秦天神川駅 8分 |
57.79m2 82.05m2 |
2LDK 中古戸建 |
太秦小 太秦中 |
S61/04 相談 |
|
|
地下鉄・京福が10分圏内で利用可能な立地、右京区役所も徒歩9分です。家の前はとっても広い畑が広がっています、便利な立地に住みながら癒しの風景の中で暮らせます。お買物はフレスコ太秦店・新鮮激安市場太秦店徒歩10分、京都ファミリー徒歩12分。学校は太秦小学校徒歩13分。 |
Bk24796
 |
京都市右京区太秦藤ケ森町 |
2,580万円 |
地下鉄 太秦天神川駅 8分 |
--- |
--- |
--- |
--- |
|
|
| この物件は会員様のみに公開しており、一般非公開です。 |
Bk24898
 |
京都市右京区太秦百合ケ本町 |
2,580万円 |
地下鉄 太秦天神川駅 18分 |
--- |
--- |
--- |
--- |
|
|
| この物件は会員様のみに公開しており、一般非公開です。 |
Bk24625
 |
京都市右京区太秦桂木町 |
2,880万円 |
地下鉄 太秦天神川駅 15分 |
38.25m2 |
2K 中古連棟 |
太秦小 太秦中 |
S54/05 |
|
|
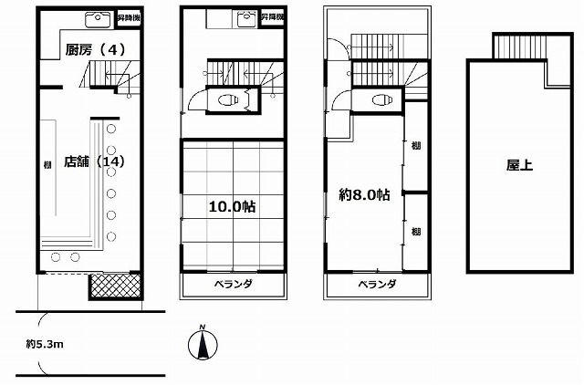
大映通商店街東の端より約73m入った所にある店舗、2階3階はお風呂はないですが住居としても使用できます。居ぬき物件で備品や食器類は使用もできますし処分も相談できます。お店を始められませんか? |
Bk24952 |
京都市右京区花園中御門町 |
2,980万円 |
地下鉄 太秦天神川駅 19分 |
--- |
--- |
--- |
--- |
|
|
Bk24925 |
京都市右京区太秦朱雀町 |
3,230万円 |
地下鉄 太秦天神川駅 10分 |
87.8m2 79.39m2 |
3LDK 新築戸建 |
太秦小 太秦中 |
 相談 |
|
|
Bk24886
 |
京都市右京区太秦安井東裏町 |
3,398万円 |
地下鉄 太秦天神川駅 16分 |
51.7m2 84.24m2 |
2SLDK 新築戸建 |
安井小 四条中 |
 相談 |
|
|
4区画の分譲地、3区画に商談が入りましたので残1区画です。3階建てプランがあります、バルコニーが西向きで夏場少し西日で暑いかも・・・。お買物は 生鮮館なかむら円町店徒歩8分、ライフ太秦店徒歩9分。学校は安井小学校徒歩7分。 |
ご希望の物件が見つからない場合は、希望条件を登録をしてください
当社にてお客様のご希望物件をお探しいたします。
メールまたは、お電話(075-864-0066)にお問合せいただいても結構です。
|