売買部 電話:
075-864-0066
MAIL:
lh-baibai@light-h.co.jp
賃貸部 電話:
075-864-0012
MAIL:
lh-chintai@light-h.co.jp

右京区の不動産の売買・賃貸はライトハウスにお任せ下さい【右京区のライトハウス】

嵯峨野東田町 新築一戸建

嵯峨野東田町 新築一戸建ライトハウス売主物件

おすすめポイント

嵯峨野東田町 新築一戸建

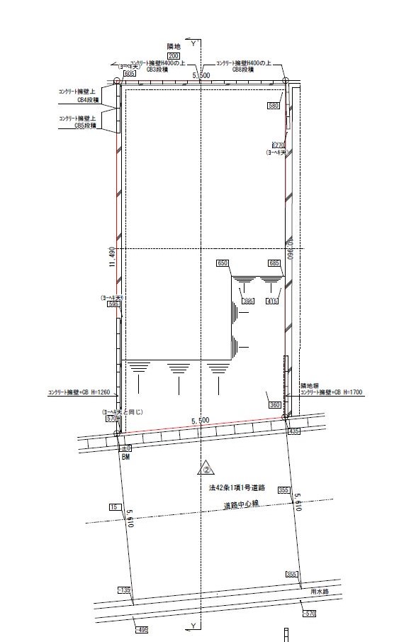
現況更地、お客様のご希望をお聞かせください。

● 静かで自然豊かな住環境
● 南側は建物なく陽当り良好
● 土地面積 61.27m²(18.53坪)
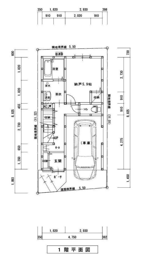
● 間口 5.5m、南側 幅員5.6m公道に面す

このような間取で建築を予定しております


●交通
 京福 有栖川駅 約950m(徒歩13分)
 JR 太秦駅 約1500m(徒歩19分)
●教育
 嵯峨野小学校 約400m(徒歩5分)
 蜂ヶ岡中学校 約1000m(徒歩13分)
●その他
 スーパーコレモ 嵯峨野店 約400m(徒歩5分)
 イオンスタイル嵯峨野小町 約750m(徒歩10分)





価格 3,680万円
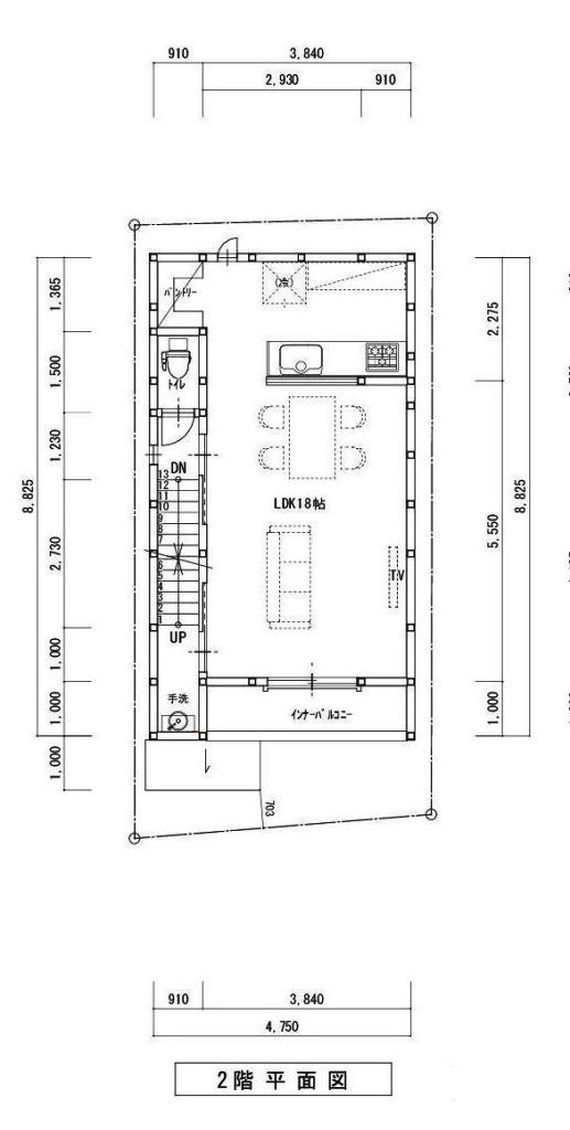
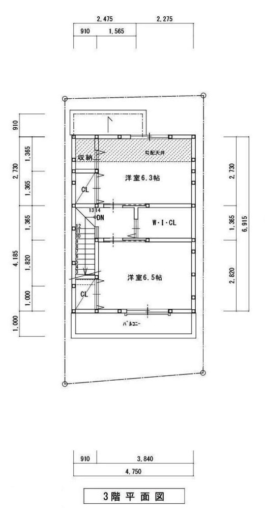
間取り 3LDK
構造 3階建(木造)
土地面積 61.27m²(18.53坪)
建物面積 116.66m² (35.28坪)
建蔽率 70%(準耐火構造緩和)
容積率 200%
物件詳細 嵯峨野東田町 新築一戸建 #24892
更地になりました 2月27日
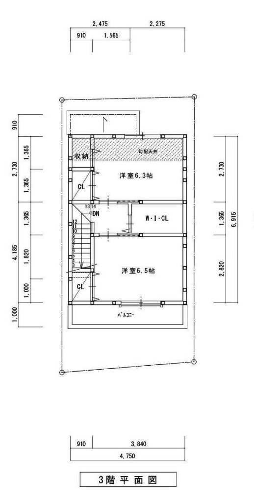
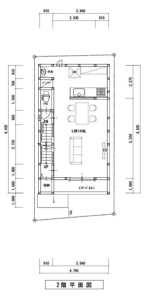
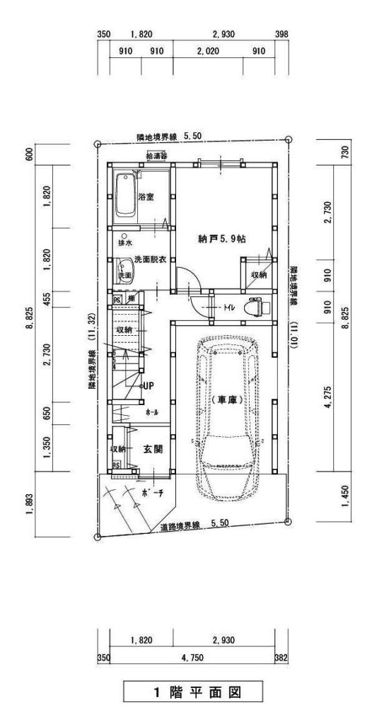
間取プラン図

更地になりました 3月4日

更地になりました 3月4日撮影

  • 間口 5.5m、前道 5.6m
  • 建築予定地南側は建物なく、陽当りの良い場所です
  • 東側に有栖川
  • 建築予定地より南方向へ撮影
  • 建築予定地より西方向へ撮影
  • 周囲には高い建物なく静かで開放感のある立地です

間取プラン図

間取プラン図

  • 敷地 間口5.5m、前道5.6m
  • プラン図1 (1F).jpg
  • プラン図1 (2F).jpg
  • プラン図1 (3F).jpg
  • プラン図2 (1F).jpg
  • プラン図2 (2F).jpg
  • プラン図2 (3F).jpg

京都市 右京区の不動産は、ライトハウスにお任せください

京都市 右京区エリア専門の不動産会社です。右京区の売買物件の購入・売却、賃貸物件の検索・管理は、ライトハウスにお任せ下さい。

売買物件

一戸建・中古マンション・土地・収益物件など、お客様の多様なご要望に応えられるように物件を多数取り揃えております。右京区を専門にしておりますので、この地域の売買物件はお任せ下さい。

売買物件の場合、弊社取扱いの約500物件のうち約7割が非公開の物件です。これは、売主様のご都合などの理由で一般の方に公開されない物件です。弊社の売買会員に登録を頂きますと、一般非公開の情報を公開しております。より多くの物件をご覧いただきご希望の条件にあったものを見つけていただくためにも、売買会員への登録をおすすめ致します。会員様には、お客様のご希望条件に合致する物件が出たときに自動的にその情報を配信したり、お客様の条件に一致した物件一覧を常にウォッチ頂けるようにお客様専用ページをお作りしております。さらに、会員登録者には、仲介手数料の割引や住宅ローンの無料相談などさまざまな特典をご利用いただけます。

ご成約いただいたお客様から、お喜びの声・弊社へのお励ましを頂戴しております。その一部をお客様の声に掲載しております。皆様のより良い住環境作りにお役に立てますよう頑張ります。

不動産の売却

不動産の売却におきましては、お客様のご希望タイミングでよりスムースに売却できるような体制を整えております。右京区の不動産相場を熟知しておりますので、売約ご予定の方は、お声掛けをお願い致します。詳しくは、売却相談をご覧願います。

賃貸物件

単身者向け物件からファミリー向け物件にいたるまで、お家賃の安いものからハイグレードな物件までお客様の多様なライフスタイルに適合する多くの物件を取り揃えております。また、店舗・事務所などの事業用におきましても、右京区のことはお任せ下さい。

貸家におきましては、右京区に300戸を管理しております。賃貸マンションやアパートと比較して、ゆとりのある間取りでありながらもリーズナブルなお家賃で一戸建を借りることが出来ますのでオススメです。お子様の成長にともない、独立したお部屋が必要にな方、1BOXが駐車可能な貸家、ペット可の物件、京町屋風の物件、店舗付など..人気の物件は、比較的短期間でご成約頂きますので、貸家・借家をお探しの方は、貸家会員への登録をおすすめします。

居住用賃貸物件全般をお探しの方は、賃貸希望条件に登録いただきますと、お客様のご希望条件に合致したものを提案させて頂きます。

賃貸管理

右京区を中心に、数多くの賃貸物件を管理しております。入居者の周旋のみならず、家賃管理、更新・契約、退去、退去後の立ち合い・改装など、大家様のお仕事全般をお手伝いできますので、ご相談いただければ幸いです。